TERRAIN EXCLUSIF À ULTRAMORT AVEC PROJET APPROUVÉ ET VUE SUR LES PYRÉNÉES

Intéressé par ce bien?
Envoyer un message
+(34) 608 209 662
info@brosrealestate.com

Certificat énergétique

Dans le traitement

TERRAIN EXCLUSIF À ULTRAMORT AVEC PROJET APPROUVÉ ET VUE SUR LES PYRÉNÉES
Empordà, Ultramort
350.000€ Nouveau
Descripció

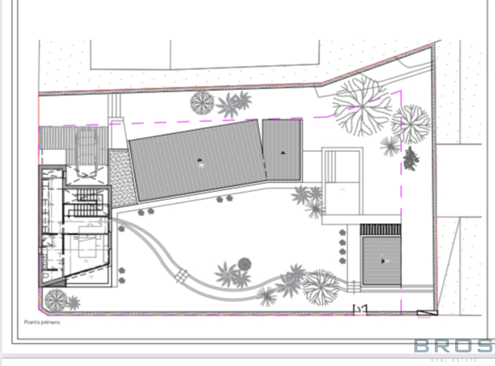
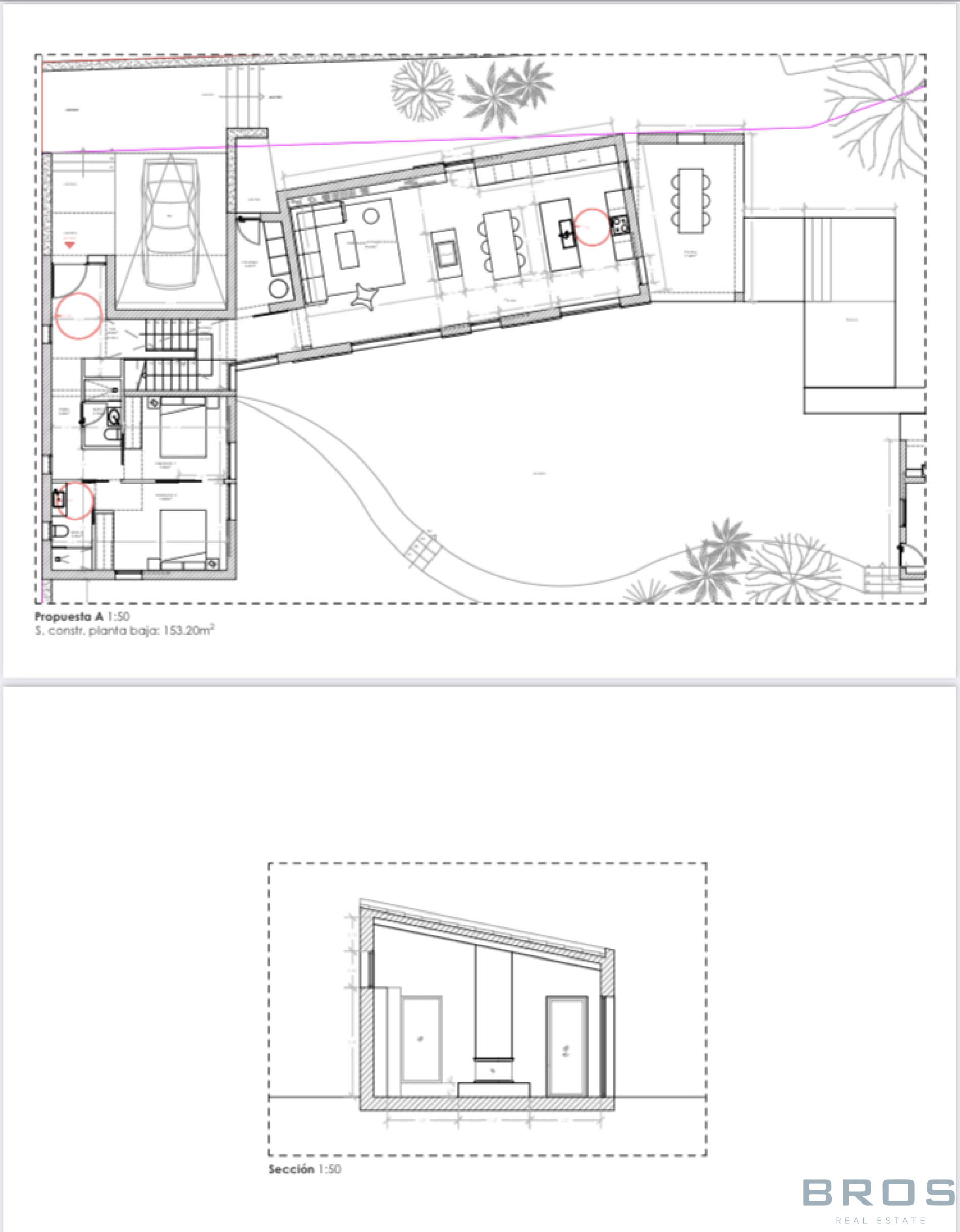
Situé dans la paisible et pittoresque commune d'Ultramort, ce magnifique terrain de 721 m² offre l'opportunité de construire la maison de vos rêves avec des vues exceptionnelles sur les Pyrénées. À seulement 10 minutes des plages de l'Escala, de l'Estartit et de Pals/Begur, ce terrain est accompagné d'un projet approuvé pour une maison unifamiliale minimaliste néo-rustique de 200 m², assurant une intégration parfaite avec l'environnement naturel. De plus, le permis de construire est déjà accordé, vous permettant de commencer immédiatement la construction. Situé dans une rue résidentielle, ce terrain offre calme et intimité, et la parcelle entièrement plate facilite le processus de construction.

Ce terrain est un véritable joyau sur la Costa Brava, idéal pour ceux qui souhaitent construire une maison dans un environnement naturel privilégié, sans renoncer à la proximité des meilleures plages et villes de la région.

Plus de détails
  • Référence: 24-casa-001ultramort-jg
  • Emplacement: Empordà
  • Produit: Vente
  • Sup. terrain: 721 m²
  • Taper: Terrenys
  • Chambres: 2
  • Salle de bain: 2
Qualités
  • - Superficie du terrain : 721 m²
  • - Projet exécutif pour une maison unifamiliale de 200 m²
  • - Style minimaliste néo-rustique
  • - Parcelle complètement plate
  • - Permis de construire déjà approuvé
  • - Situé dans une zone résidentielle calme
  • - Vue panoramique sur les Pyrénées
  • - À seulement 10 minutes des plages les plus emblématiques de la Costa Brava
Distances
  • - À 10 minutes des plages de l'Escala, de l'Estartit et de Pals/Begur
  • - Gérone : à 35 minutes (environ 28 km)
  • - Barcelone : à 1h30 (environ 130 km)

Êtes-vous intéressé à vendre une propriété?

Monter